STUDIOBOX
Planung

Skizzieren Sie Ihre Idee

Gerne unterbreiten wir einen Planungsvorschlag, zugeschnitten auf Ihre Anforderungen. Eine einfache Skizze des vorhandenen Raumes wird zugrunde gelegt. So gehen Sie vor:

  
 

Konfigurieren Sie Ihre Kabine selbst online

Die Grundmaße

Beispiele einer STUDIOBOX 180 cm x 180 cm (Raster-Innenmaß)

Hier sehen Sie Planungsbeispiele. Weitere Größen und Layouts sind lieferbar.

Anfrage senden

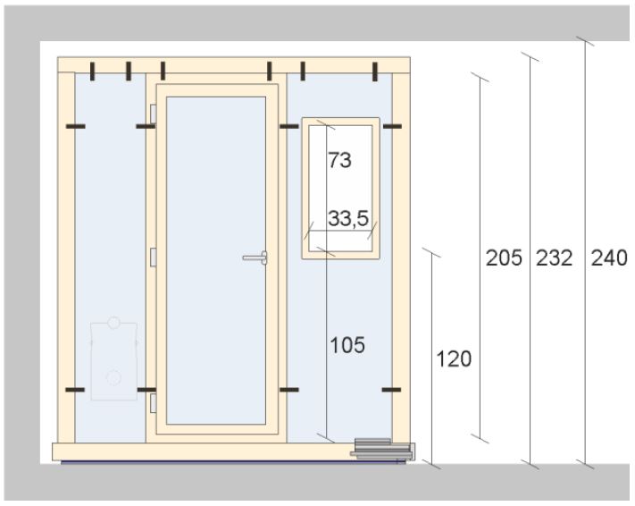
Höhen der Schallschutzkabinen

Die Standard-Innenhöhe der STUDIOBOX beträgt 205 cm. Für die Montage ist eine bauseitige Raumhöhe von 240 cm notwendig.

Über- und Minderhöhen sind jederzeit lieferbar. Je nach Anforderung können diese Höhen in 5-cm-Schritten definiert werden.

Bedarf erfassen

Nicht immer ist es eindeutig, welche Lösung die richtige für die jeweilige Anwendung oder Situation ist. Akustische, architektonische Gegebenheiten und Zielsetzungen sind zu berücksichtigen. Wir machen eine klare Aussage zur technischen Realisierbarkeit Ihres Vorhabens.

Nehmen Sie Kontakt auf. +49 (0) 151 / 566 96 164

Kabinen, die Sie interessieren könnten